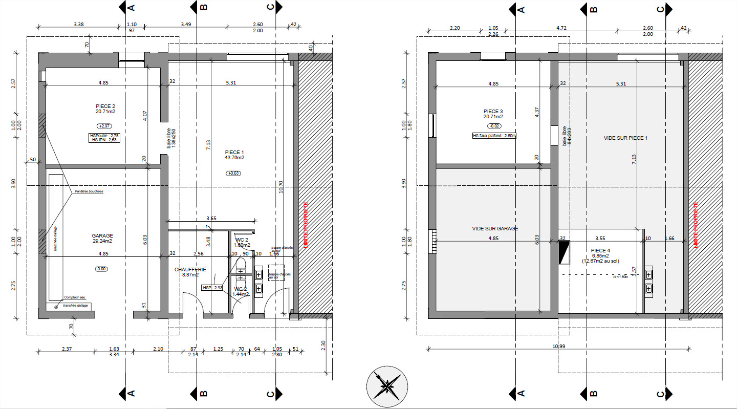
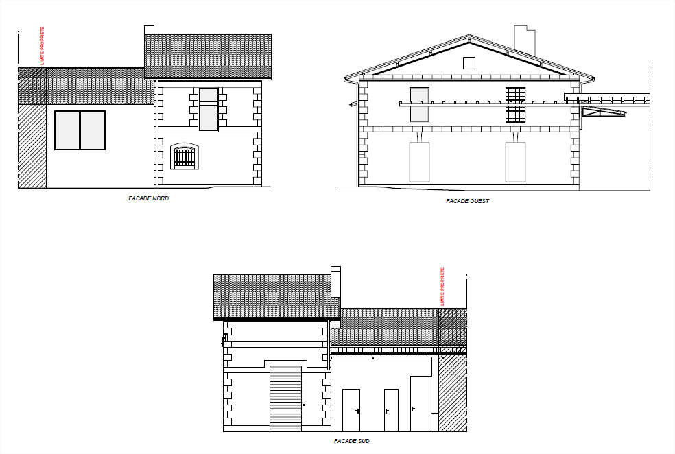
Etat des lieux 3