L’étude d’avant-projet, qu’est-ce que c’est ?
L’étude d’avant-projet est une étape indispensable qui permet de cadrer le projet à sa base pour respecter une cohérence du début à la fin de ma mission.
Comment se déroule une étude d’avant-projet ?
Après la bonne prise en compte du cahier des charges du projet avec le client, j’étudie l’ensemble des contraintes administratives (Plan local d’urbanisme, règlement de lotissement, Bâtiments de France, prévention de risques naturels, etc.), et techniques (obligations suivant la nature du terrain ou la destination du bâtiment, par exemple).
Une fois ces points administratifs et techniques clarifiés, je dessine, en étroite collaboration avec le maître d’ouvrage, des plans de niveaux, sur la base le plus souvent d’une maquette 3D, permettant d’apprécier le projet dans sa globalité.
Quel est son rôle ?
Cette phase d’avant-projet est primordiale dans le processus de conception. En effet, l’avant-projet permet de valider avec le client l’ensemble des plans de niveaux, le principe constructif ainsi que les matériaux envisagés pour la construction.
A partir de ces éléments, découle une maquette 3D intégrant tous les renseignements essentiels à la bonne réalisation du projet.
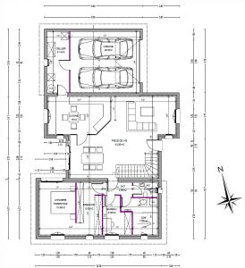
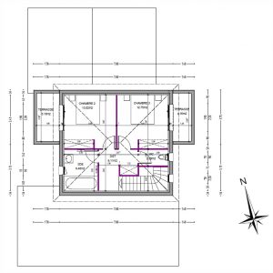
Esquisse d’une maison à Parentis :
Votre étude d’avant-projet avec Projection
Je privilégie idéalement des échanges en direct, afin de fluidifier au mieux le processus et de vous fournir l’étude la plus précise et complète.
Avec Projection, l’étude d’avant-projet peut s’accompagner de vues 3D intérieures et extérieures sur demande.

Extension d’une habitation sur Izon (33)
Vous souhaitez en savoir plus ?
Rendez-vous sur la page des Réalisations pour voir des exemples d’avant-projet.
N’hésitez pas également à me contacter pour plus d’informations.




