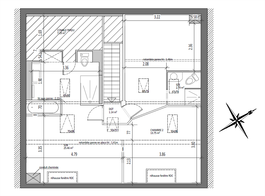
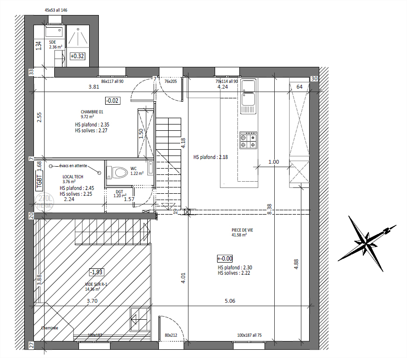
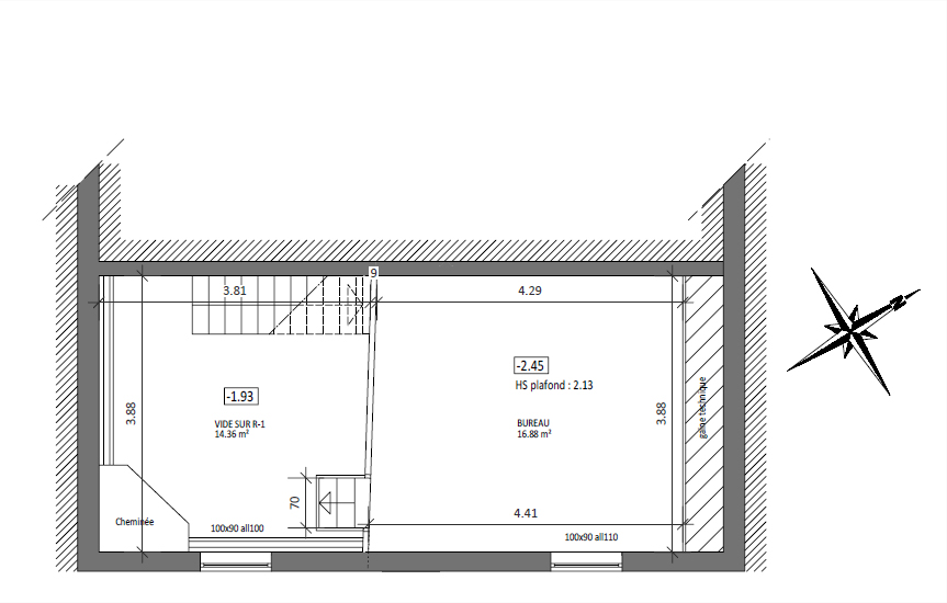
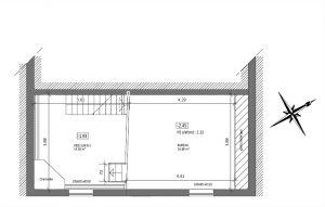
Etat des lieux 1